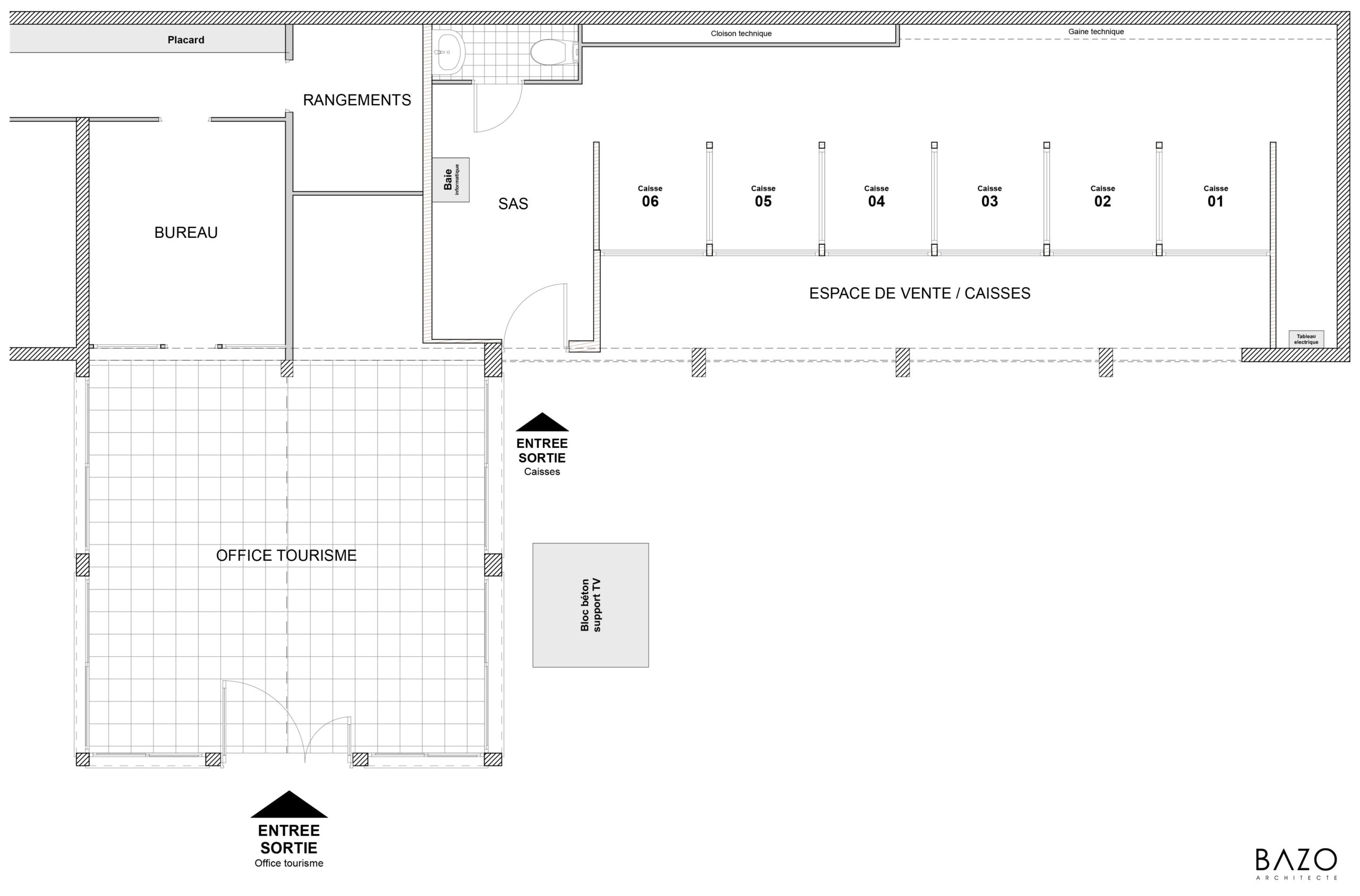
Projet de rénovation de l’espace de vente (caisses et guichets) et de l’espace réservé aux salariés de la station de ski 1600 à Puy Saint Vincent pour le gestionnaire des remontées mécaniques Sem Les Ecrans.
Les espaces intérieurs sont réimaginés pour créer une nouvelle atmosphère plus accueillante et ergonomique pour les utilisateurs de la station de ski et aussi pour les salariés. Le bâtiment a été adapté aux normes d’accesibilité.
Le parcours client est redéfini pour leur offrir une vraie expérience avec de nouveaux espaces et services à l’intérieur du bâtiment.
Tout le mobilier a été dessiné et fabriqué sur mesure, comme la banque d’accueil qui s’inspiré du relief des montagnes.
Le projet a été réalisé en collaboration avec Loisirs Equipements et le regroupement LSR Pro Equipements