Maison McM-69
Projet de construction d’une maison individuelle sur deux niveaux sur la commune de Cailloux-sur-Fontaines dans le département du Rhône (69) et la démolition de la maison existante.
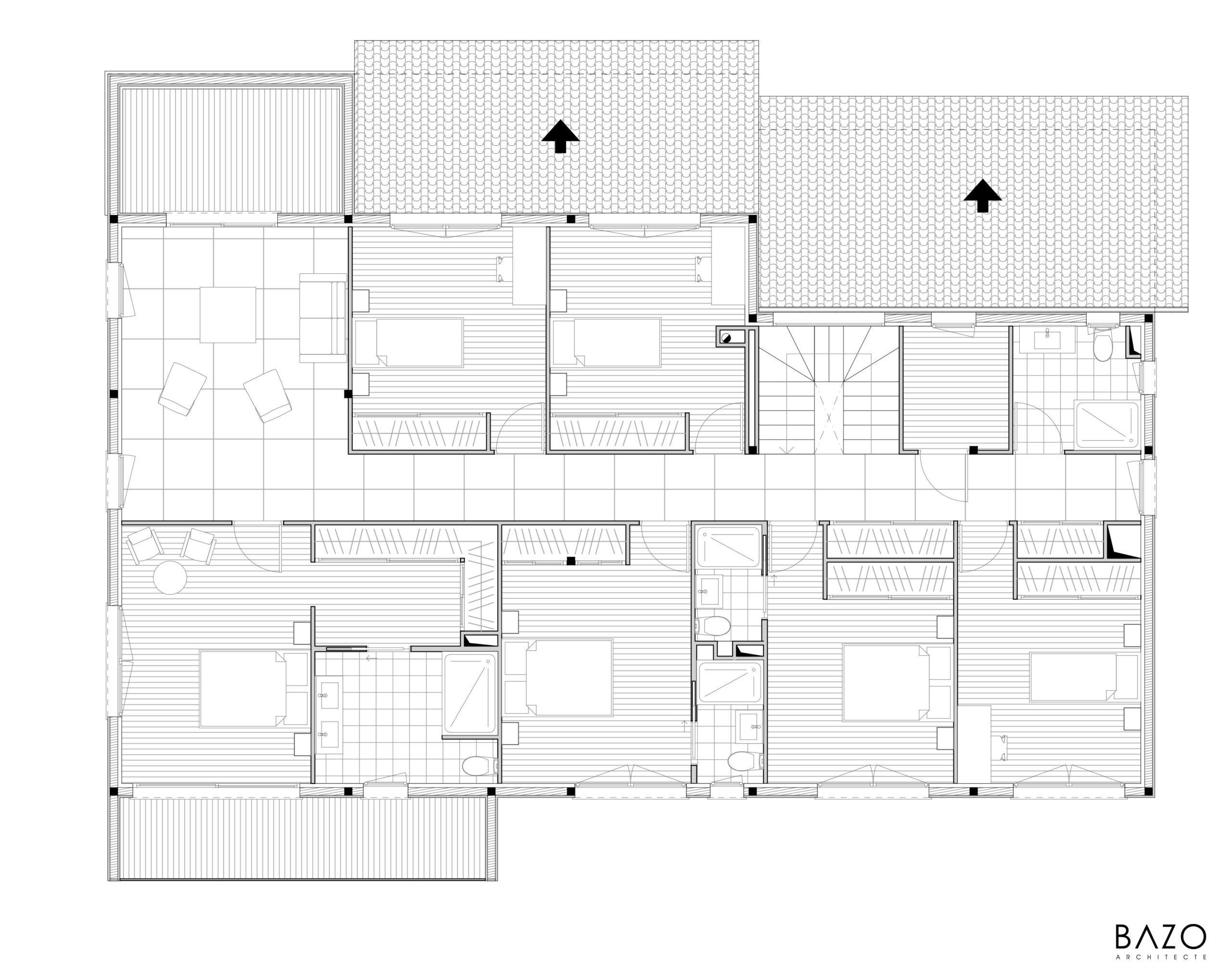
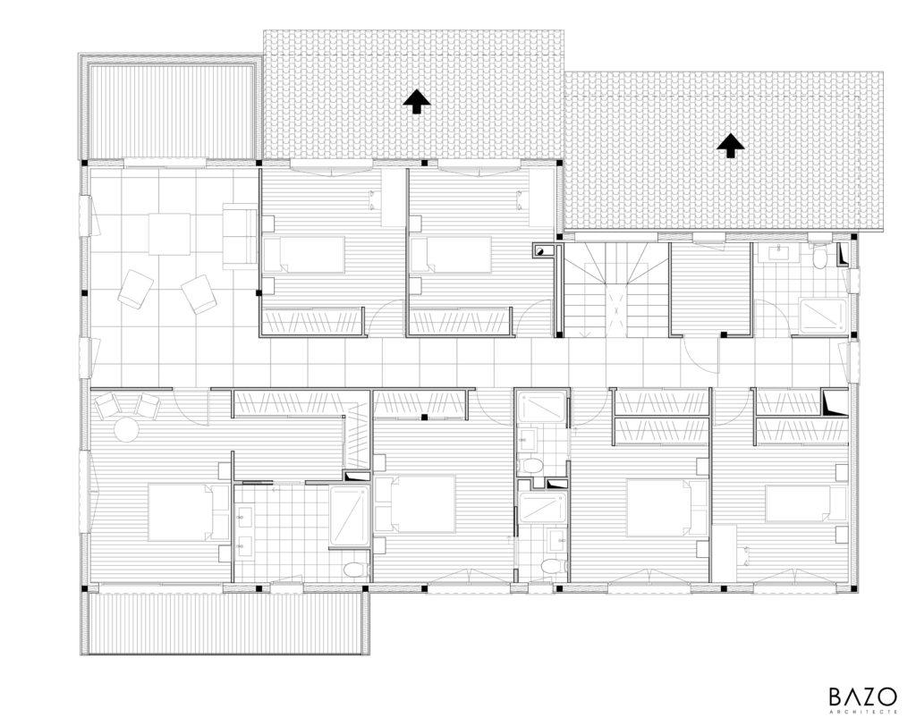
La maison projetée est d’un style traditionnel avec volumes simples et compacts. Elle comporte 7 chambres pour accueillir à toute la famille qui réside à l’étranger.
RDC
R+1



Previous
Next
