Maison GO-38

Projet de construction d’une maison individuelle sur deux niveaux et sous-sol qui se situe proche à Brié-et-Angonnes dans le département de l’Isère (38).
La maison s’implante au fond de la parcelle pour libérer le maximum d’espace devant le terrain.
La maison est orientée vers le sud-ouest, pour profiter de l’ensoleillement et de la vue dégagée. Des grandes ouvertures sont créées pour apporter de la lumière naturelle à l’intérieur de la maison. 
Des grands espaces abrités et terrasses sont créées devant la maison pour profiter de l’extérieur.
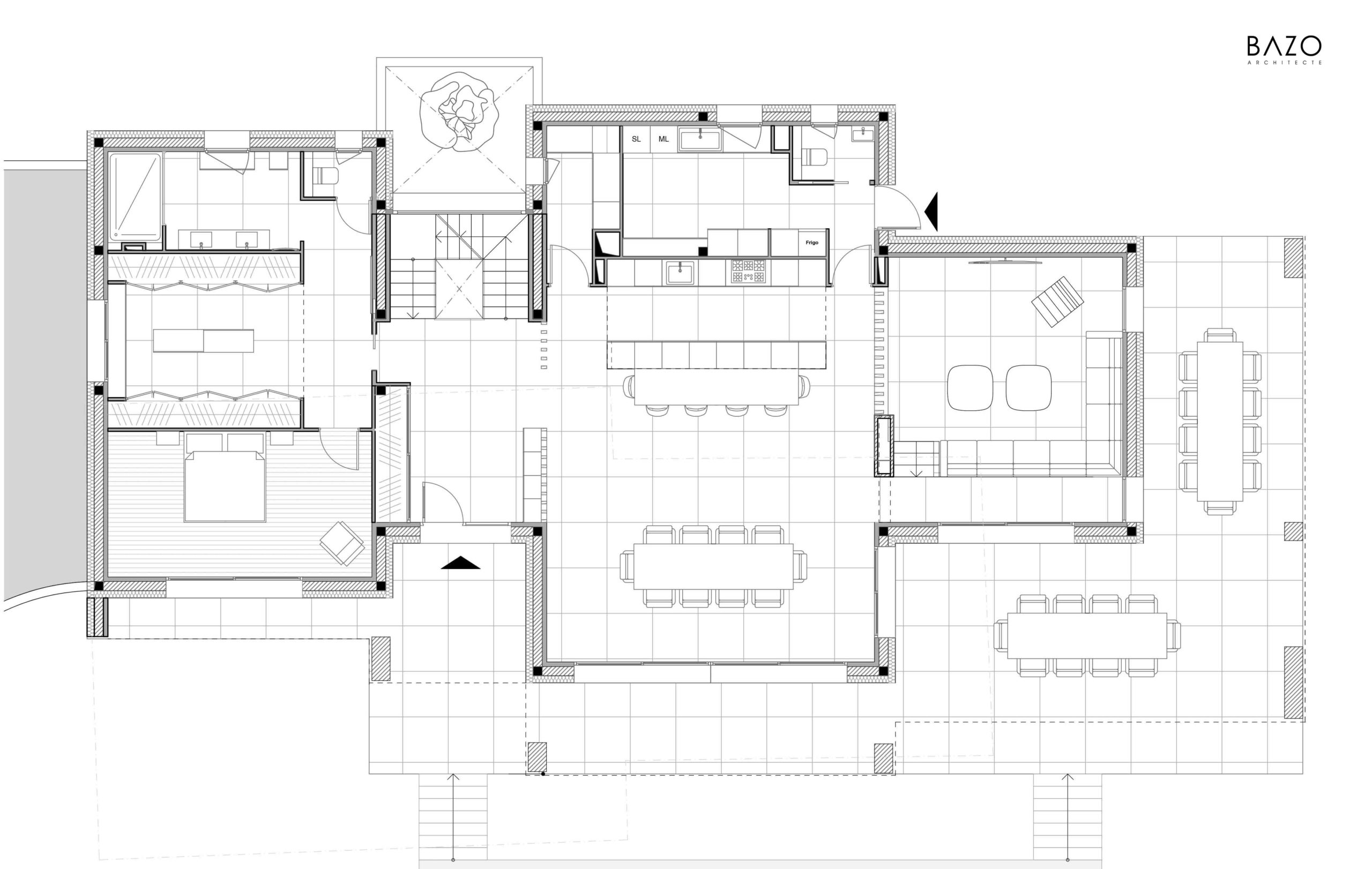
RDC
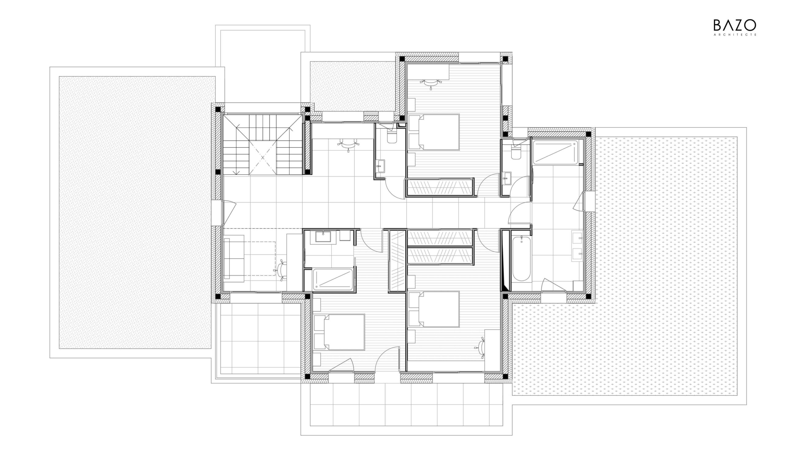
R+1
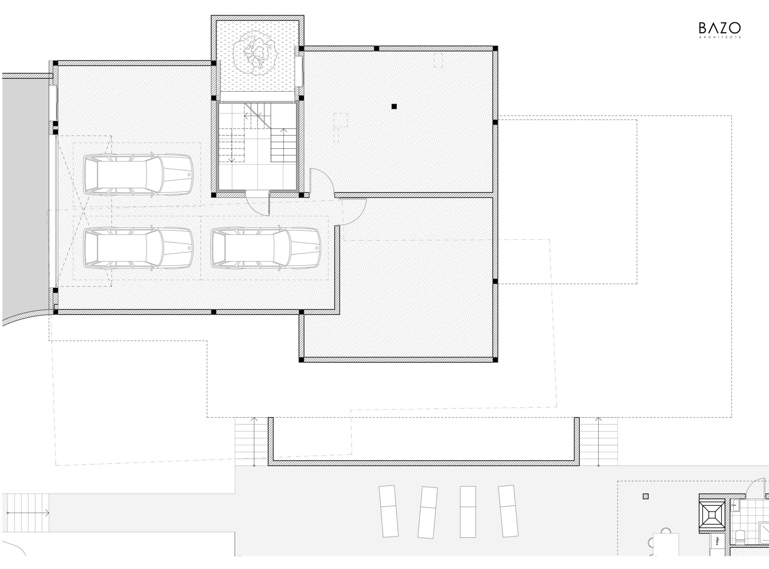
R-1